行业知识

热电阻热电偶选型、插入深度、扩大管的应用

2025-05-19 08:30:38 科技股份有限公司

热电阻热电偶选型、插入深度、扩大管的应用

今天咱们探讨温度仪表的选型、插深以及扩大管的应用,在工业生产过程中,温度仪表是实现生产过程自动化、确保工艺参数稳定的关键设备之一。其选型与安装的合理性直接关系到测量的准确性、生产的安全性以及系统的可靠性。从众多相关规范中,我们梳理出了关于温度仪表选型、插入深度以及扩大管使用的重要条款,旨在为工程技术人员提供一份清晰、实用的技术参考,以保障温度仪表在实际应用中能够充分发挥作用,助力工业生产的高效、稳定运行。

图片关键词

一、涉及规范汇总

1.GB 50093-2013《自动化仪表工程施工及质量验收规范》

2.HG/T 20507-2014 《自动化仪表选型设计规范》

3.SH/T 3104-2013《石油化工仪表安装设计规范》

4.SH/T3005-2016《石油化工自动化仪表选型设计规范》

5.TCAMETA 001036-2023《煤化工仪表选型规范》

6.DL 5190.4-2019《电力建设施工技术规范》

二、各规范选型与应用

1.GB 50093-2013《自动化仪表工程施工及质量验收规范》

温度传感器选型 :

规范对温度仪表选型未有特别详细的条款,但从整体自动化仪表工程的施工及质量验收角度,要求所选用的温度仪表应符合工程的设计要求和相关质量标准,满足现场环境条件、测量精度以及工艺过程的需求,确保仪表在实际运行中能够稳定可靠地工作。

温度传感器深度插入 :

未明确规定具体温度仪表在各类介质管道或设备中的插入深度数值,但强调温度检测元件的安装位置和插入深度应能正确反映被测对象的温度,避免因安装位置不当或插入深度不足导致测量误差过大,影响温度测量的准确性和可靠性。

图片关键词

2、HG/T 20507-2014《自动化仪表选型设计规范》

温度仪表选型:

第 5.1.1 条规定温度仪表的选型应根据工艺要求、测量精度、介质特性等因素确定。第 5.3.1 条规定,当介质具有腐蚀性或磨损性时,应选用耐腐蚀或耐磨的温度仪表。

插入深度:

图片关键词

4.1 一般规定
温度检测元件浸入深度应符合下列要求:
1.温度检测元件浸入深度的选择应以温度检测元件插至被测介质温度变化灵敏,且具有代表性的区域为原则。

2.当温度检测元件在满管流体管道上垂直安装或与管壁成45°角安装时,温度检测元件末端浸入管道内壁长度不应小于50mm,不宜大于125mm。

图片关键词

3.温度检测元件在设备上安装时,温度检测元件末端浸入设备内壁长度不应小于150mm。在烟道、炉膛及绝热材料砌体设备上安装时,应按实际需要选用。

3、SH/T 3104-2013《石油化工仪表安装设计规范》

温度仪表选型 :

规范中未明确统一的温度仪表选型条款,但在第 5.1.1 条提到 “温度元件保护套管” 的相关内容,即在工艺管道及设备上安装、并与工艺介质接触的温度元件应配置保护套管,这体现了对温度元件保护的重视,间接对温度仪表选型提出了要求,选型时需考虑是否配备合适的保护套管。

插入深度及一般规定 :

图片关键词

第 5.2.2 条规定,当温度测量元件在管道上安装时,感温部位应全部进入管道内,温度灵敏段应充分接触被测介质。第 5.2.8 条指出,储罐上温度测量元件的插入深度不宜大于 400mm,安装位置应高于罐内加热盘管 600mm。在浮顶罐上安装的温度测量元件不应妨碍浮顶移动 。

图片关键词

5.温度测量仪表
5.1温度元件保护套管
5.1.1在工艺管道及设备上安装、并与工艺介质接触的温度元件应配置保护套管。
5.1.2公称压力大于等于PN110(Class600)高压反应器的多点式温度元件的保护套管宜设置压力仪表,用于检测套管泄漏。
5.1.3温度元件保护套管与过程接口宜采用法兰连接,在不允许采用法兰连接的场所,应采用焊接,公称压力小于等于PN20(Class150)及非危险性介质(水、空气、氮气等)的场所可采用螺纹连接。
5.2安装要求
5.2.1当温度测量元件在管道上安装时,宜垂直插入管道内;当在弯头处或倾斜45°安装,温度测量元件应与介质逆向。
5.2.2当温度测量元件在管道上安装时,感温部位应全部进入管道内,温度灵敏段应充分接触被测介质。
5.2.3当热电偶、热电阻和双金属温度计在直径小于DN80的管道上安装时,管道局部应扩径(温度仪表安装管道的扩径方式参见附录F),或安装在弯头处,扩径的要求如下:
a)公称压力小于等于PN110(Class600)的管道,扩径至DN100;

b)公称压力大于PN110(Class600)的管道,扩径至DN150。

图片关键词

5.2.4炉膛热电偶接线盒与加热炉绝热层的距离不宜小于200mm。
5.2.5加热炉管表面热电偶的安装应符合下列要求:
a)热电偶与炉膛应采用法兰连接;
b)热电偶的长度应充分考虑炉管的受热膨胀因素;
c)热电偶的刀刃状端部应紧密焊接固定于炉管上,刀刃长度不少于50mm,在靠近刀刃处采用适当的金属卡子将热电偶焊接固定在炉管上。
5.2.6设备上温度测量元件的安装应符合下列要求:
a)不同标高的温度元件宜安装在同一方位;
b)宜水平安装,特殊要求可45°安装;
c)应避免安装在介质不流动的区域内;
d)应避免与设备内件碰撞;
e)应避免与设备周围的梁、架、梯等构物碰撞。
5.2.7耐磨热电偶末端露出设备的外套管长度宜为100mm~150mm。
5.2.8储罐上温度测量元件的插入深度不宜大于400mm,安装位置应高于罐内加热盘管600mm。在浮顶罐上安装的温度测量元件不应妨碍浮顶移动。

扩大管的使用 :

第 5.2.3 条规定,当热电偶、热电阻和双金属温度计在直径小于 DN80 的管道上安装时,管道局部应扩径,公称压力小于等于 PN110(Class600)的管道,扩径至 DN100;公称压力大于 PN110(Class600)的管道,扩径至 DN150。

图片关键词

4、SH/T3005-2016《石油化工自动化仪表选型设计规范》

温度仪表选型:

第 5.1.1 条规定温度仪表的选型应符合工艺测量和控制的要求,应满足精度、量程、响应时间等性能要求;应根据介质的特性,如温度、压力、腐蚀性等,选择合适的温度仪表类型。

图片关键词

插入深度:第5条温度计套管的插入深度应保证测温元件的端点位于被测介质温度变化的灵敏区域。在管道内安装时,插入深度宜位于管道直径的1/3到1/2处,并且应至少插入管道内50mm;在容器内安装时,插入深度距容器内壁宜至少150mm,但对于带有搅拌器的容器插入深度可适当缩短;

5、TCAMETA 001036-2023《煤化工仪表选型规范》

温度仪表选型 :

第 5.1.1 条规定温度仪表的选型应符合工艺测量的要求,并应符合安全、控制系统的相关要求;选型应满足就地指示或远传信号的要求,并满足量程、精度的要求;选型应考虑介质的特性,如腐蚀性、磨损性等。第 5.2.1 条规定玻璃温度计的选型应符合相关规定,且不应垂直安装在管道上。第 5.3.1 条规定热电偶、热电阻的选型应根据测量精度、温度范围、响应时间、环境条件等要求确定。

6、DL5190.4-2019 电力建设施工技术规范插入深度: 第4部分 热工仪表及控制装置

4.2.14 插入式热电偶和热电阻的套管,其插入深度应符合下列要求:

1.高温高压蒸汽管道的公称通径不小于250mm时,插入深度宜为70mm;公称通径大于250mm,插入深度宜为100mm。

2.一般流体介质管道的外径不大于500mm时,插入深度宜为管道外径的1/2;外径大于500mm时,插入深度宜为300mm。

3.烟、风机及风粉混合物介质管道,插入深度宜为管道外径的1/3-1/2。

4.回油管道上测温元件的测量端,应浸入被测介质中。

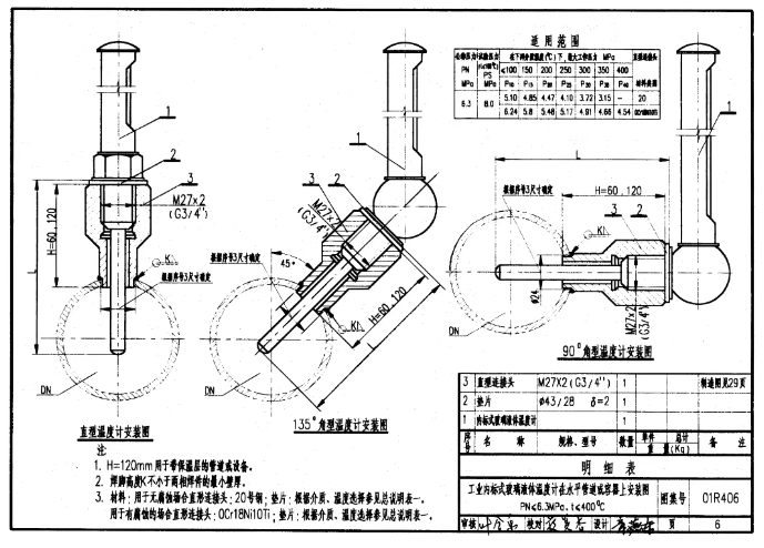
通过对上述规范中关键条款的详细解读与总结,我们明确了温度仪表选型、插入深度以及扩大管使用的具体要求。在实际工程应用中,技术人员应严格遵循这些规范,结合具体的工艺条件和生产需求,合理地进行温度仪表的选型与安装,安装图纸还应参考《HGT 21581-2012 自控安装图册》。这不仅能够确保测量数据的精准可靠,为生产过程的自动化控制提供有力支持,还能有效避免因仪表选型或安装不当而引发的安全隐患和生产事故,进而提高整个生产系统的稳定性和可靠性。希望本文的技术指导能为相关工程技术人员提供有价值的参考,助力工业生产在安全、高效、精准的轨道上持续前行。

首页
产品
新闻
联系